Descrizione
Vendesi raffinato appartamento, dal carattere contemporaneo, generosa metratura, esposto su quattro lati e inondato di luce naturale, con affaccio panoramico sul verde e sul Sile, sito in pieno centro storico.
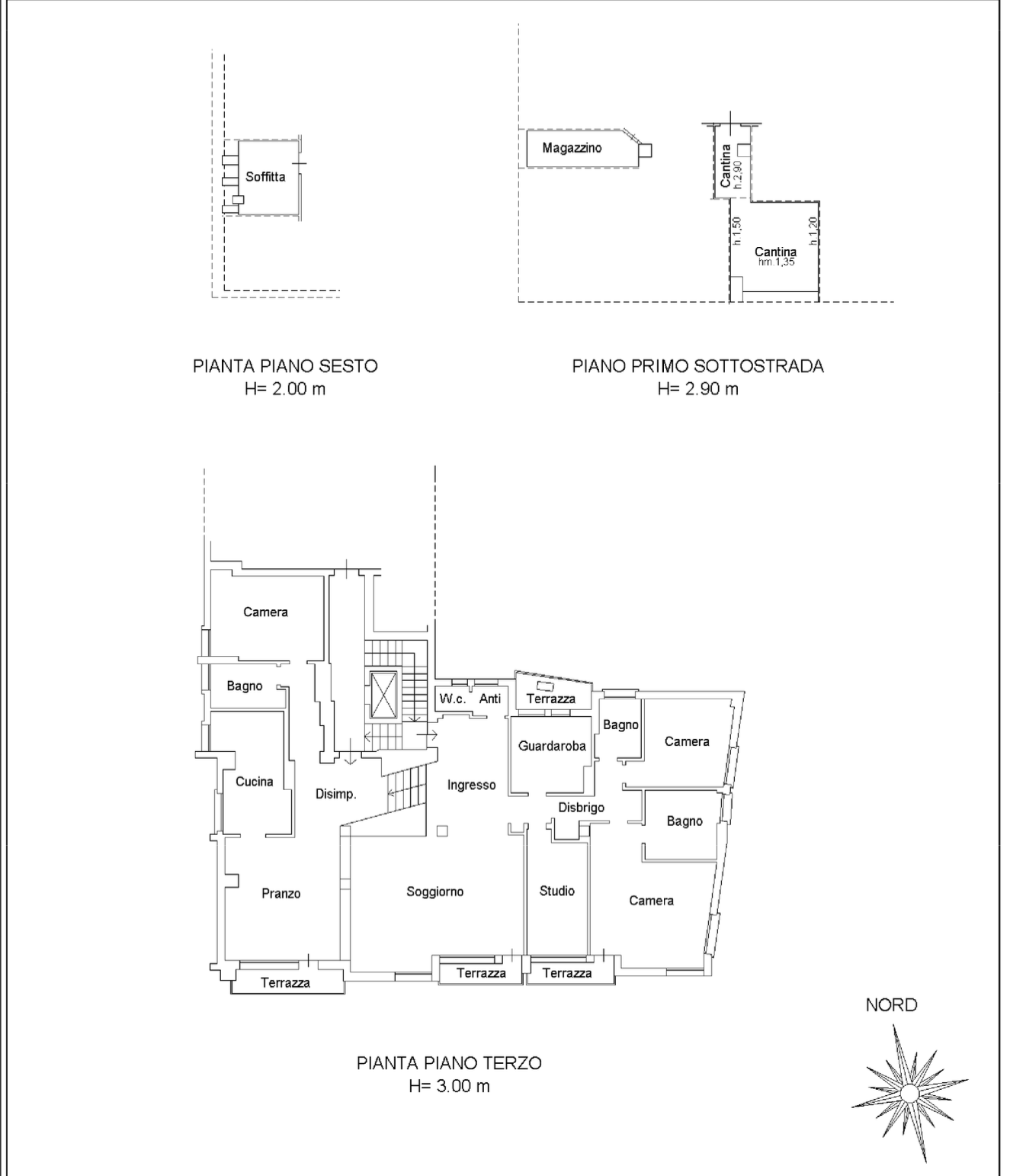
L’abitazione è stata oggetto di un’accurata ristrutturazione e si sviluppa su una superficie di circa 250 mq disposti su due livelli sfalsati. E’ stata ricavata dall’unione di due appartamenti e si presenta con una nuova distribuzione interna più movimentata ed ariosa.
Colpisce per la luminosità proveniente dalle grandi vetrate, gli spazi ampi e dinamici e l’affaccio aperto della zona living, l’ampiezza delle camere, le finiture di pregio e gli arredi eleganti.
La zona living si presenta come un ambiente unico e di grande respiro, composto da un ingresso accogliente, una sala da pranzo ed un ampio salotto, incorniciato da una sequenza di pilastri e pareti in cui sono state ricavate delle aperture che amplificano la luce, creano una continuità visiva e giochi prospettici tra gli ambienti interni e tra l’interno e l’esterno. Sono state ricavate anche numerose nicchie su cui possono trovare alloggio personali complementi d’arredo. Entrambi gli ambienti godono di terrazzini, con affaccio su un giardino alberato.
La cucina è comoda, funzionale e super accessoriata, dotata di elettrodomestici in acciaio inox, top di gamma: piano cottura a induzione, grill barbecue, forno da 90cm, frigorifero, congelatore e frigo-cantina per vini.
Nella zona giorno si trova anche la prima delle camere matrimoniali, ideale per gli ospiti, con bagno privato e disimpegno attrezzato con armadiatura a muro.
Ben divisa dal resto della casa, si trova la zona notte composta da uno studio/camera singola, disimpegno, due grandi camere matrimoniali ciascuna servita da un proprio bagno privato ed una anche con terrazzino.
A completare l’abitazione c’è anche un’ampia lavanderia, con terrazzino, che potrebbe diventare un’ulteriore camera da letto; due magazzini nel sottotetto ed una cantina al piano terra dell’edificio.
Per quanto concerne le finiture: i bagni sono finiti in marmo travertino; i pavimenti sono in legno ovunque. Le luci, oltre alle lampade di alto design, dove necessario sono stati incassate file di faretti.
Il riscaldamento è autonomo e prodotto da due caldaie a condensazione ad alte prestazioni ed ecologiche, che garantiscono bassissimi consumi. Inoltre, sono stati predisposti diversi termostati e valvole termostatiche per riscaldare le diverse zone della casa a seconda delle esigenze.
L’immobile è anche dotato di climatizzazione e servito da ascensore.
Per maggiori informazioni e visite potete contattare l’Agenzia Trecomm allo 0422.410210.
























